WBAI Radio Studio

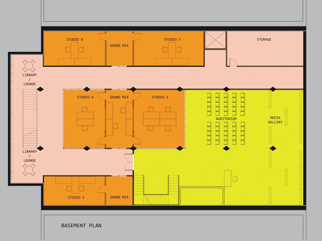
Vacant retail space at 147 West 27th Street is proposed as the location for WBAI's new studio. In keeping with the radio station's staunch dedication to transparency, open fora and the democratic process, the proposed two-story space will provide numerous soundproof broadcasting studios, an atrium, axial corridors, and provisions for the public including a media gallery and multi-purpose event space. Triple-glazing and textured paneling will ensure sound attenuation while allowing light to penetrate and play a tangible part in the exchange of information.

Fall - Winter 2012